
_bildung
Sanierung mehrerer Schulen in Korntal
Gymnasium Korntal
Realschule Korntal
Flattichschule Korntal-Münchingen
Strohgäuschule Korntal-Münchingen
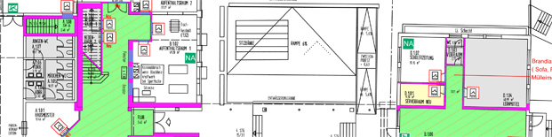
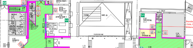
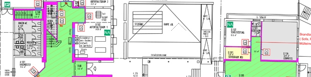
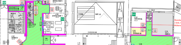
Die vier weiterführenden Schulen der Stadt Korntal-Münchingen werden brandschutztechnisch saniert.
Hierzu wurde im Rahmen einer Gefahrenanalyse ein Maßnahmenplan erstellen, und dieser in vier
Bauabschnitten jeweils in den Sommerferien umgesetzt.
Bauherr: Stadt Korntal-Münchingen
Leistungsphasen: 1-8
Baujahr: 2007 – 2011
baukosten: 1.800.000€